Teksas II

dom o powierzchni 65,2 m²

Parametry

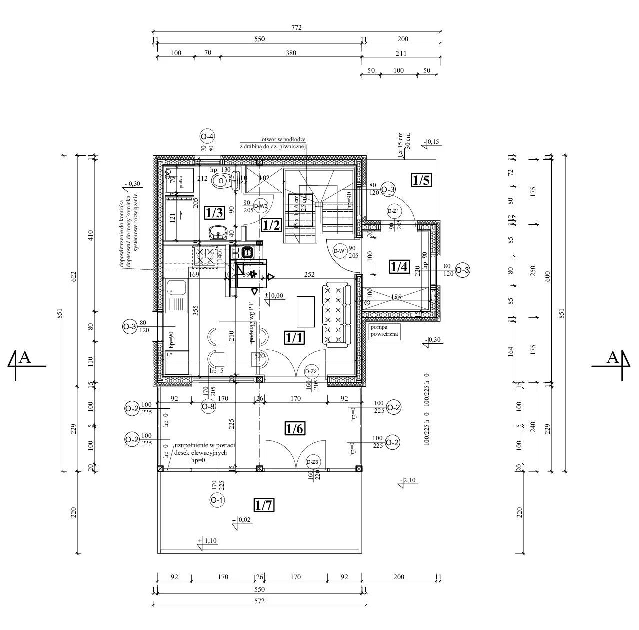
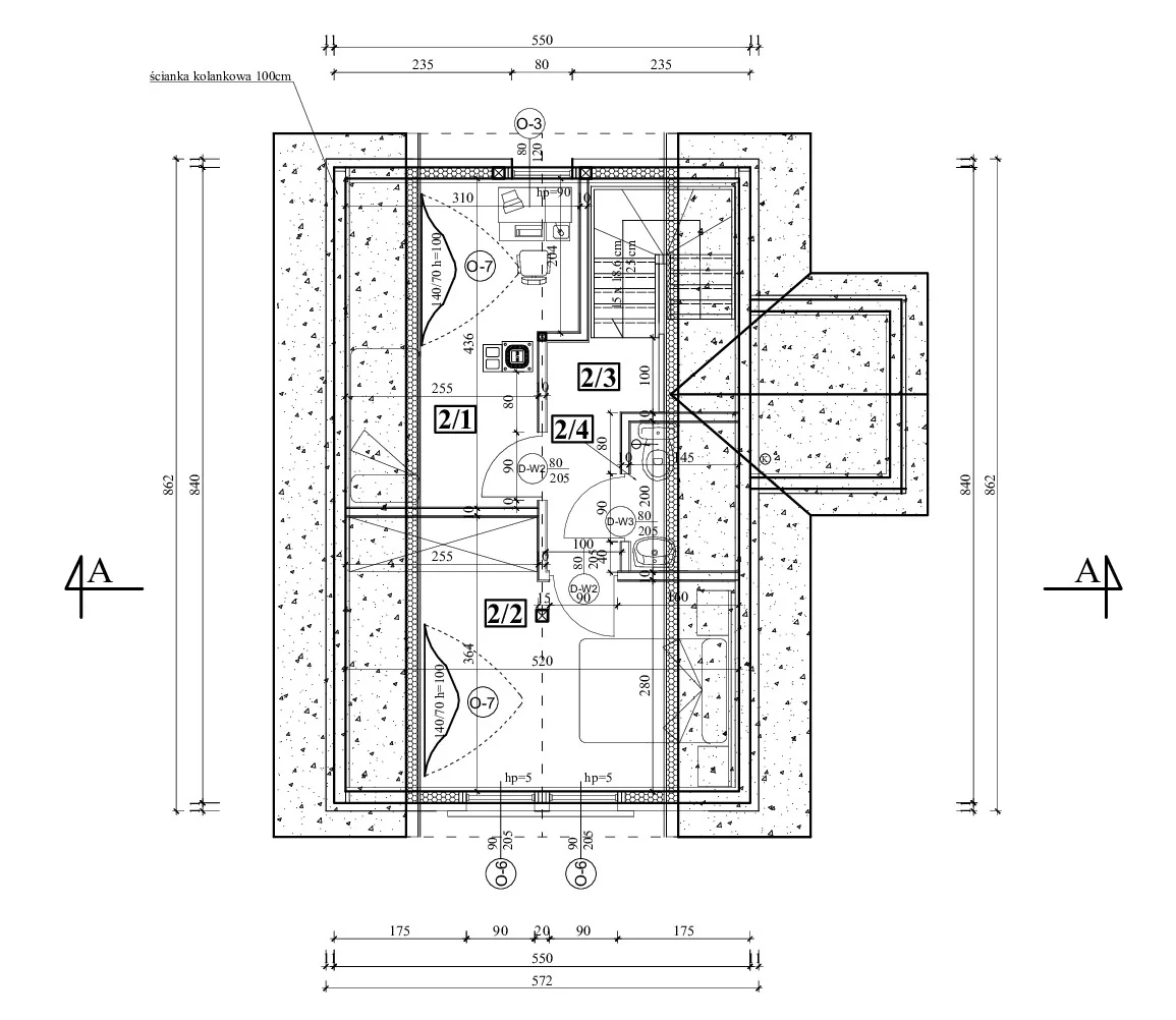
Powierzchnia użytkowa65,2 m²
Powierzchnia zabudowy46,75 m²
Powierzchnia podłóg80,6
Wymiary domu5,50 x 8,5 m + wiatrołap 2,5 x 2 m
Liczba pięter2
Teksas II projekt domu drewnianego szkieletowego Mildo domy drewniane

Opis projektu Teksas II:

Domek Teksas w nowej odsłonie. Jak wiecie nasza firma jest elastyczna i w przypadku każdego z naszych domów, zarówno pokrycie dachowe, rodzaj elewacji, rodzaj okien i drzwi zostają do Państwa indywidualnego wyboru.
W tym modelu mamy elewacje pokrytą deską elewacyjną ze świerku skandynawskiego.
W tym wypadku zastosowaliśmy okna i drzwi drewniane ze szprosami.
Wykonaliśmy przestronny taras, na który wychodzi się z niedużego, lecz pełnego uroku ogrodu zimowego, bardzo dobrze przeszklonego.
Na dachu charakteru dodają również okna tzw. wole oczy. Tym, co w szczególności różni Teksas II to dodatkowy wiatrołap.

Ważne informacje:

Cena dotyczy budynku w stanie surowym zamkniętym. Do kwoty netto należy doliczyć 8% podatku VAT.

Przedstawiona oferta ma charakter informacyjny, nie stanowi oferty handlowej w rozumieniu Art.66 Kodeksu Cywilnego.
Zdjęcia zamieszczone na naszej stronie internetowej oraz przesłanej ofercie mają charakter poglądowy. Do każdej inwestycji podchodzimy indywidualnie, więc jeżeli w wycenie nie jest wyszczególniony np. taras, garaż, okna połaciowe, witryny, balkon, komin, piwnica, oświetlenie itp. to podana cena ich nie dotyczy – wymagają dodatkowej dopłaty.

Rzuty:

Galeria:

Planujesz budowę i potrzebujesz

Więcej informacji?

Napisz do nas jeśli potrzebujesz więcej informacji o tym projekcie, chce dostosować projekt do swoich potrzeb lub masz inne pytania albo wątpliwości.

Contact Form Demo