Nebraska V
dom o powierzchni 37,26 m²
180 000 zł
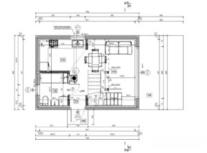
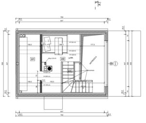
Parametry
| Powierzchnia użytkowa | 37,26 m² |
| Powierzchnia zabudowy | 35 m² |
| Powierzchnia podłóg | 47,85 m² |
| Wymiary domu | 5 x 7 m |
| Liczba pięter | 2 |
Ważne informacje:
Cena dotyczy budynku w stanie surowym zamkniętym. Do kwoty netto należy doliczyć 8% podatku VAT.
Przedstawiona oferta ma charakter informacyjny, nie stanowi oferty handlowej w rozumieniu Art.66 Kodeksu Cywilnego.
Zdjęcia zamieszczone na naszej stronie internetowej oraz przesłanej ofercie mają charakter poglądowy. Do każdej inwestycji podchodzimy indywidualnie, więc jeżeli w wycenie nie jest wyszczególniony np. taras, garaż, okna połaciowe, witryny, balkon, komin, piwnica, oświetlenie itp. to podana cena ich nie dotyczy – wymagają dodatkowej dopłaty.
Planujesz budowę i potrzebujesz
Więcej informacji?
Napisz do nas jeśli potrzebujesz więcej informacji o tym projekcie, chce dostosować projekt do swoich potrzeb lub masz inne pytania albo wątpliwości.









