Teksas
dom o powierzchni 65 m²
270 000 zł
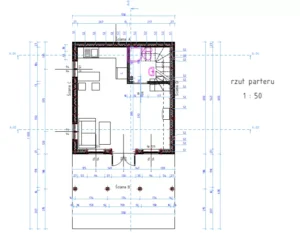
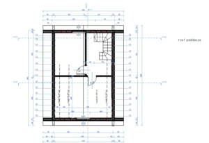
Parametry
| Powierzchnia użytkowa | 65 m² |
| Powierzchnia zabudowy | 33 m² |
| Wymiary domu | 5,22 x 6,62 m |
| Liczba pięter | poddasze użytkowe |
Opis projektu Teksas:
Nowy/stary domek drewniany w klimacie leśnym w Borach Tucholskich. Teksas jest już w pełni gotowy do zamieszkania.
Ekologiczny dom drewniany. Oczywiście nie licząc kabli, rur od wody i kanalizy nie występują w nim materiały sztuczne. Jednak akurat z tych nie mogliśmy zrezygnować. Do budowy w większości wykorzystaliśmy materiały firmy Steico tj. wełna drzewna Steico Flex, płyty Steico Universal etc.
Ważne informacje:
Cena dotyczy budynku w stanie surowym zamkniętym. Do kwoty netto należy doliczyć 8% podatku VAT.
Przedstawiona oferta ma charakter informacyjny, nie stanowi oferty handlowej w rozumieniu Art.66 Kodeksu Cywilnego.
Zdjęcia zamieszczone na naszej stronie internetowej oraz przesłanej ofercie mają charakter poglądowy. Do każdej inwestycji podchodzimy indywidualnie, więc jeżeli w wycenie nie jest wyszczególniony np. taras, garaż, okna połaciowe, witryny, balkon, komin, piwnica, oświetlenie itp. to podana cena ich nie dotyczy – wymagają dodatkowej dopłaty.
Planujesz budowę i potrzebujesz
Więcej informacji?
Napisz do nas jeśli potrzebujesz więcej informacji o tym projekcie, chce dostosować projekt do swoich potrzeb lub masz inne pytania albo wątpliwości.











