Oregon
dom o powierzchni 102,3 m²
370 500 zł
Parametry
| Powierzchnia użytkowa | 102,3 m² |
| Powierzchnia zabudowy | 76 m² |
| Powierzchnia podłóg | 116,8 m² |
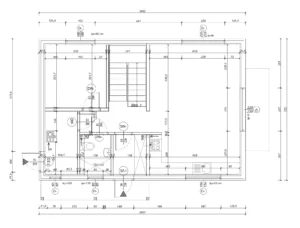
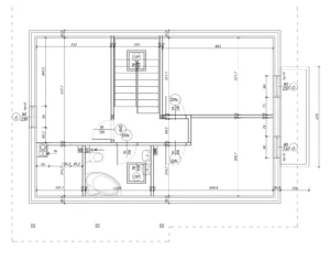
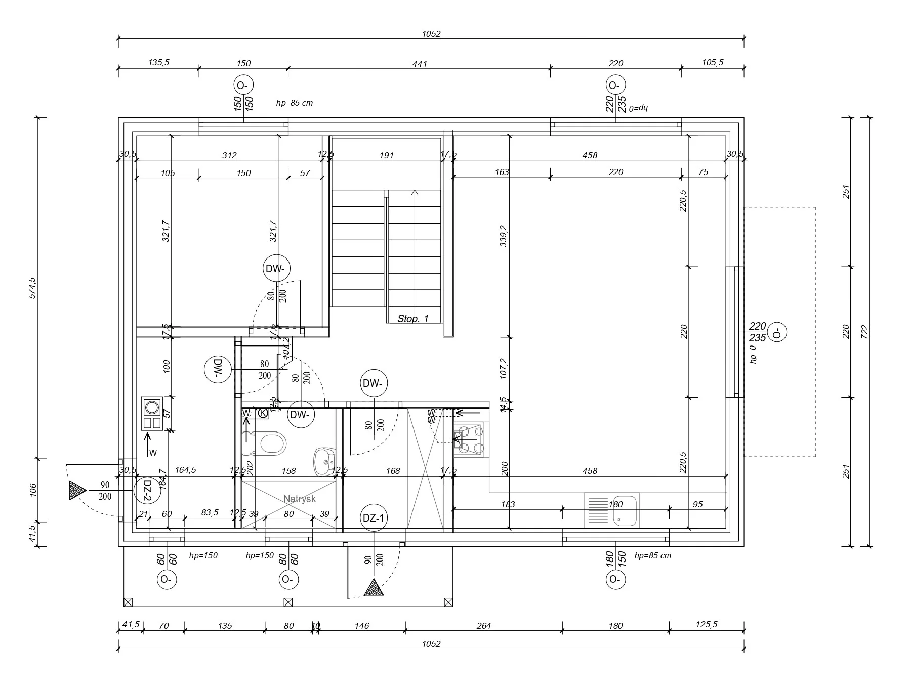
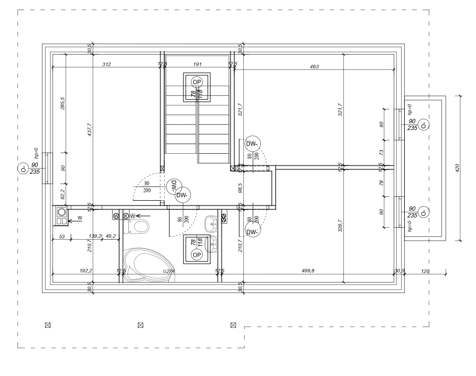
| Wymiary domu | 7,22 x 10,52 m |
| Liczba pięter | poddasze użytkowe |
Opis projektu Oregon:
Projekt domu drewnianego Oregon po niewielkich zmianach:
- 102,3 m² powierzchni użytkowej,
- 4 pokoje, 2 łazienki i przestronny salon o powierzchni ponad 30 m² z aneksem.
Budynek energooszczędny, drzwi pasywne, okna trzyszybowe o współczynniku przenikania ciepła 0,78 W/mK plus płyta Steico Protect stanowią doskonałą izolację termiczną domu.
Ważne informacje:
Cena dotyczy budynku w stanie surowym zamkniętym. Do kwoty netto należy doliczyć 8% podatku VAT.
Przedstawiona oferta ma charakter informacyjny, nie stanowi oferty handlowej w rozumieniu Art.66 Kodeksu Cywilnego.
Zdjęcia zamieszczone na naszej stronie internetowej oraz przesłanej ofercie mają charakter poglądowy. Do każdej inwestycji podchodzimy indywidualnie, więc jeżeli w wycenie nie jest wyszczególniony np. taras, garaż, okna połaciowe, witryny, balkon, komin, piwnica, oświetlenie itp. to podana cena ich nie dotyczy – wymagają dodatkowej dopłaty.
Planujesz budowę i potrzebujesz
Więcej informacji?
Napisz do nas jeśli potrzebujesz więcej informacji o tym projekcie, chce dostosować projekt do swoich potrzeb lub masz inne pytania albo wątpliwości.








