Nevada

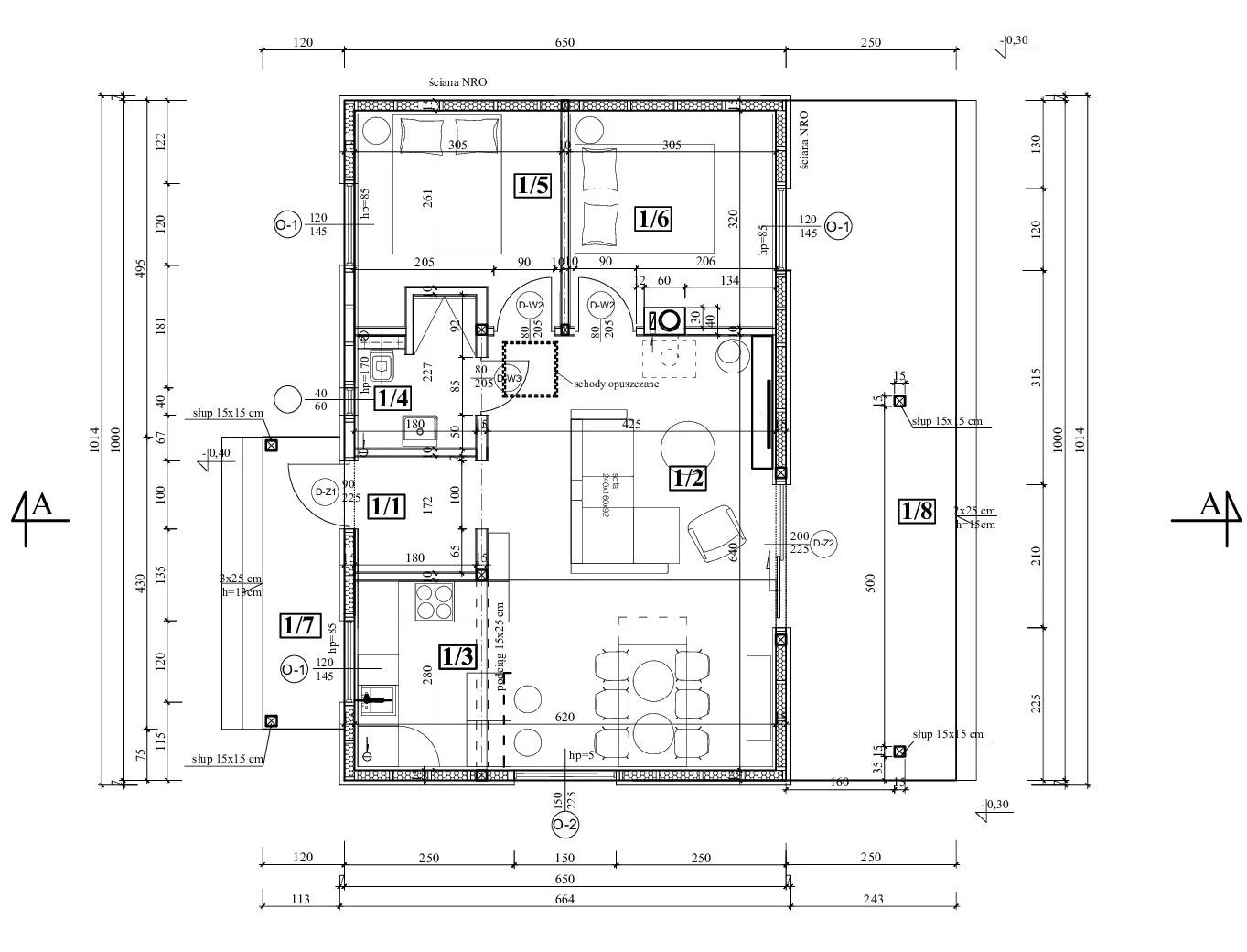
dom o powierzchni 55,5 m²

Parametry

Powierzchnia użytkowa55,5 m²
Powierzchnia zabudowy67,33 m²
Powierzchnia podłóg55,5 m²
Wymiary domu6,5 x 10 m
GarażBrak
Nevada projekt domu parterowego dom drewniany szkieletowy Mildo

Opis projektu Nevada:

Drewniany dom parterowy, który pomieści 3-osobową rodzinę. Dom składa się z dwóch sypialni, toalety i przestronnego salonu o powierzchni ponad 27 m² wraz z aneksem kuchennym 5,2 m². 

Budujemy ten dom w kilku wariantach.

Ten projekt kosztuje w większości przypadków tyle, ile typowa kawalerka. A mamy tutaj zdecydowanie ciekawsze miejsce do życia.
Dom drewniany Nevada został zaprojektowany z myślą o wszystkich, ponieważ jego cena jest na każdą kieszeń.

Dom jest ekonomiczny w użytkowaniu dzięki wysokiej jakości materiałów izolacyjnych jak Steico Protect oraz wełna mineralna. Jako ogrzewanie możemy zastosować zarówno kominek, jak i maty grzewcze.

Ważne informacje:

Cena dotyczy budynku w stanie surowym zamkniętym. Do kwoty netto należy doliczyć 8% podatku VAT.

Przedstawiona oferta ma charakter informacyjny, nie stanowi oferty handlowej w rozumieniu Art.66 Kodeksu Cywilnego.
Zdjęcia zamieszczone na naszej stronie internetowej oraz przesłanej ofercie mają charakter poglądowy. Do każdej inwestycji podchodzimy indywidualnie, więc jeżeli w wycenie nie jest wyszczególniony np. taras, garaż, okna połaciowe, witryny, balkon, komin, piwnica, oświetlenie itp. to podana cena ich nie dotyczy – wymagają dodatkowej dopłaty.

Dom Nevada wewnątrz

Dom na zewnątrz

Rzuty:

Galeria:

Planujesz budowę i potrzebujesz

Więcej informacji?

Napisz do nas jeśli potrzebujesz więcej informacji o tym projekcie, chce dostosować projekt do swoich potrzeb lub masz inne pytania albo wątpliwości.

Contact Form Demo