Nevada III
231 900 zł
Parametry
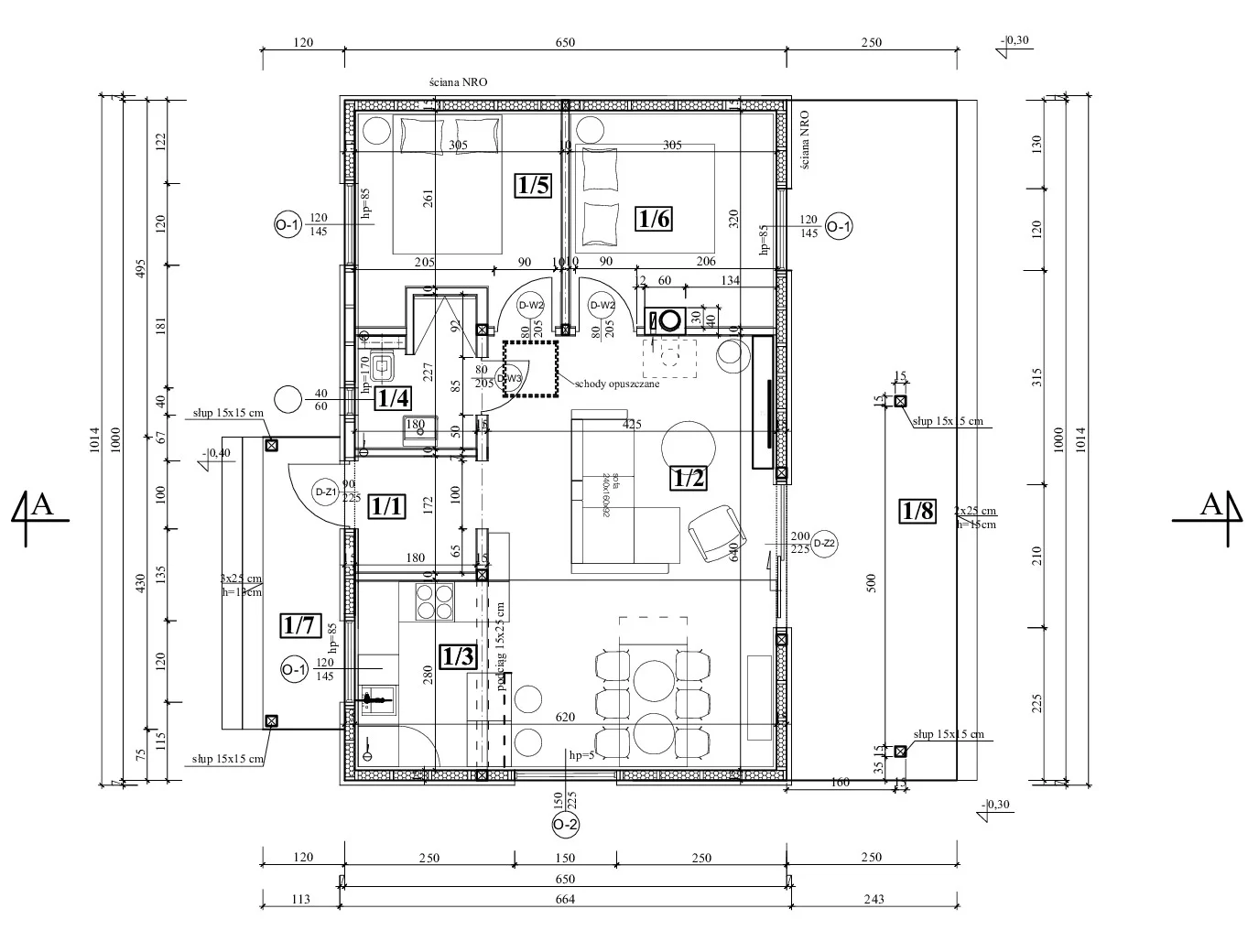
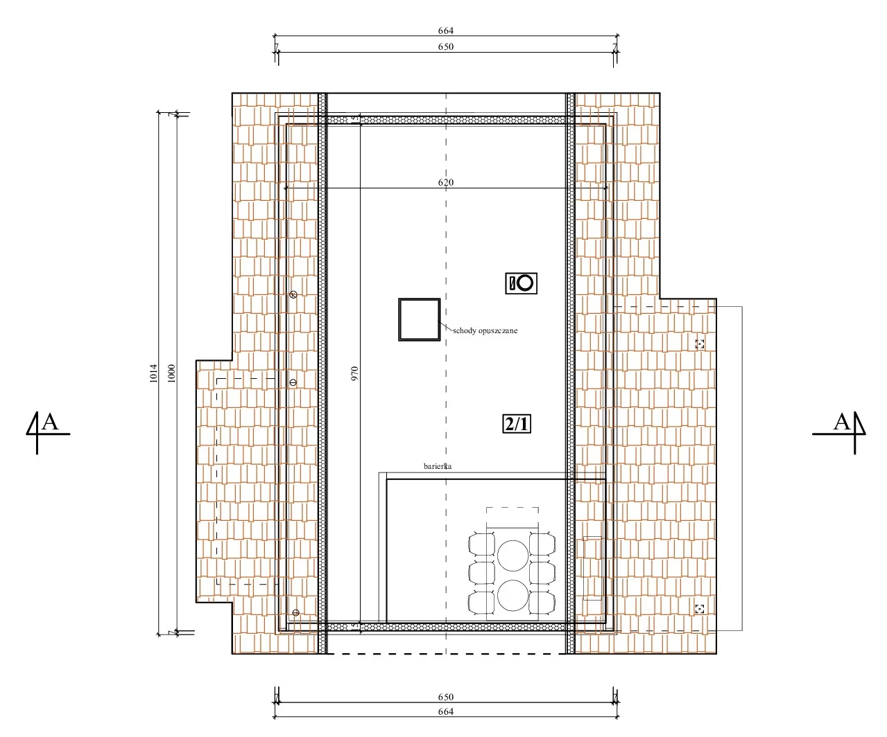
| Powierzchnia użytkowa | 55,5 m² |
| Powierzchnia zabudowy | 67,33 m² |
| Powierzchnia podłóg | 55,5 |
| Wymiary domu | 6,5 x 10 m |
| Liczba pięter | 1 |
Opis projektu Nevada III:
Wersja naszej Nevady w wersji klasycznej to dom parterowy, który pomieści 3-osobową rodzinę. Drewniany dom składa się z dwóch sypialni, toalety i przestronnego salonu o powierzchni ponad 27 m² wraz z aneksem kuchennym 5,2 m².
Budujemy ten dom w kilku wariantach.
Ten projekt kosztuje w większości przypadków tyle, ile typowa kawalerka a mamy tutaj zdecydowanie ciekawsze miejsce do życia.
Dom Nevada został zaprojektowany z myślą o wszystkich, ponieważ jego cena jest na każdą kieszeń.
Dom jest ekonomiczny w użytkowaniu dzięki wysokiej jakości materiałów izolacyjnych jak Steico Protect oraz wełna mineralna. Jako ogrzewanie możemy zastosować zarówno kominek, jak i maty grzewcze.
Ważne informacje:
Cena dotyczy budynku w stanie surowym zamkniętym. Do kwoty netto należy doliczyć 8% podatku VAT.
Przedstawiona oferta ma charakter informacyjny, nie stanowi oferty handlowej w rozumieniu Art.66 Kodeksu Cywilnego.
Zdjęcia zamieszczone na naszej stronie internetowej oraz przesłanej ofercie mają charakter poglądowy. Do każdej inwestycji podchodzimy indywidualnie, więc jeżeli w wycenie nie jest wyszczególniony np. taras, garaż, okna połaciowe, witryny, balkon, komin, piwnica, oświetlenie itp. to podana cena ich nie dotyczy – wymagają dodatkowej dopłaty.
Planujesz budowę i potrzebujesz
Więcej informacji?
Napisz do nas jeśli potrzebujesz więcej informacji o tym projekcie, chce dostosować projekt do swoich potrzeb lub masz inne pytania albo wątpliwości.


















