Montana II
309 000 zł
Parametry
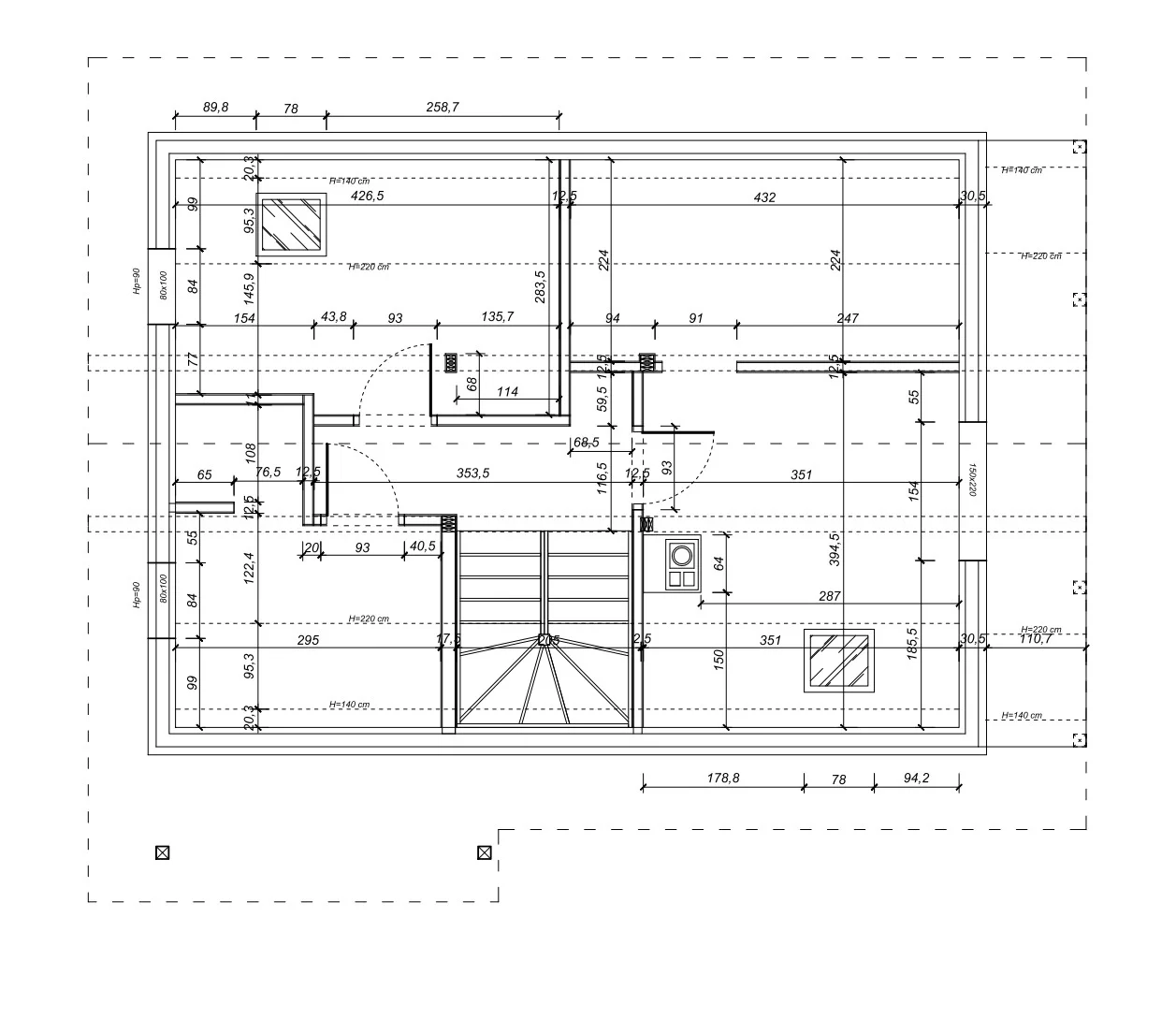
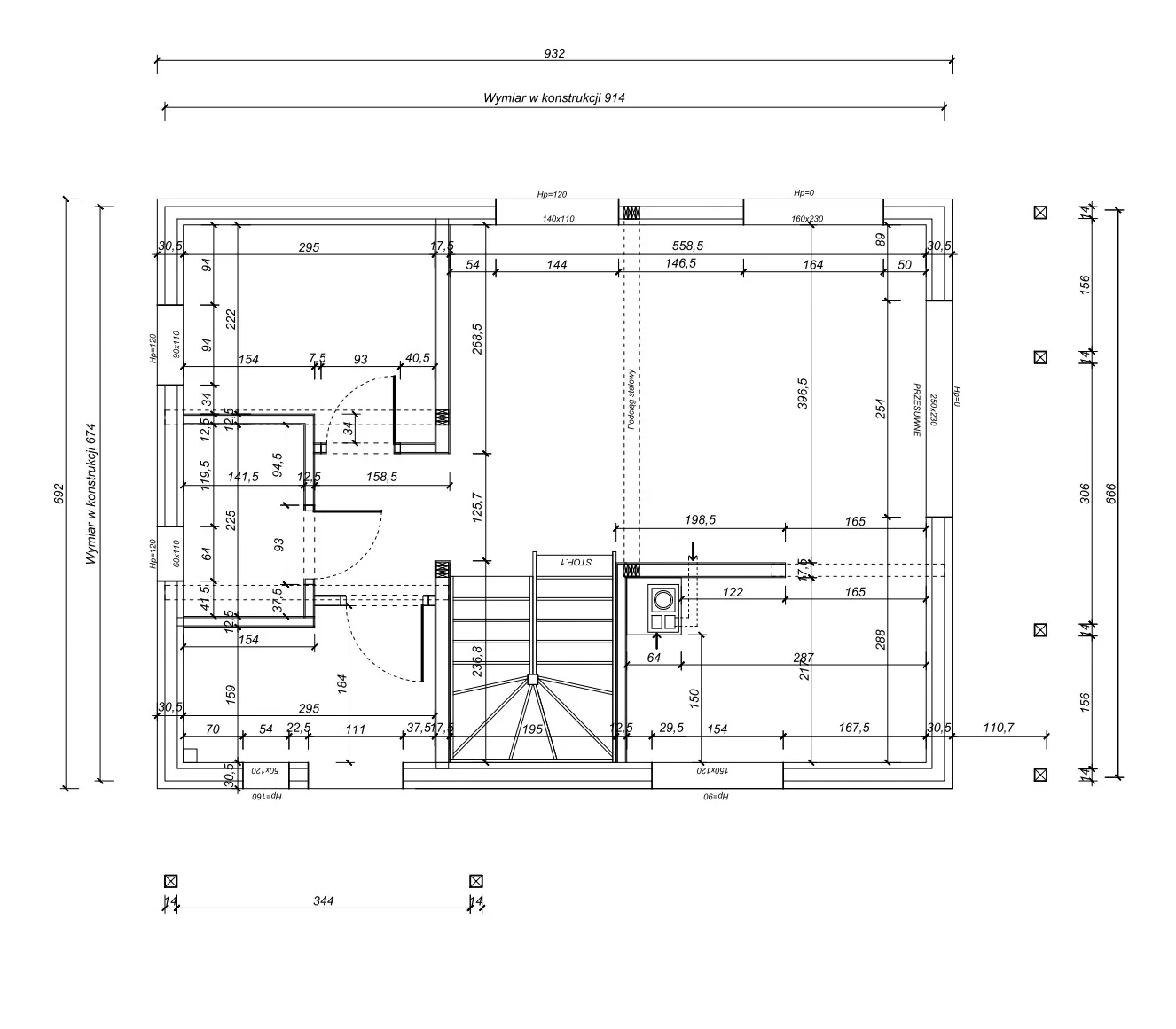
| Powierzchnia użytkowa | 83,7 m² |
| Powierzchnia zabudowy | 64,5 m² |
| Powierzchnia podłóg | 100 m² |
| Wymiary domu | 9,32 x 6,92 m |
| Liczba pięter | poddasze użytkowe |
Opis projektu Montana II:
Dom drewniany Montana II jest przestronny, z dużą liczbą okien co zapewnia bardzo dużo światła wewnątrz budynku. Ten dom jest energooszczędny, a może być również wykonany jako prawie bezkosztowy w późniejszym użytkowaniu. Wystarczy zakupić dodatkowo pompę ciepła oraz fotowoltaikę.
Dom jest bardzo ładny, przestronny z wysoką ścianą kolankową, bo aż 1,08 m, dach o kącie nachylenia 40 stopni oraz wysokości budynku 7,83 m.
Na parterze mamy przestronny salon z aneksem kuchennym, sypialnie/gabinet, pomieszczenie gospodarcze, łazienkę. Zaś na poddaszu mamy 3 pokoje oraz łazienkę.
Ważne informacje:
Cena dotyczy budynku w stanie surowym zamkniętym. Do kwoty netto należy doliczyć 8% podatku VAT.
Przedstawiona oferta ma charakter informacyjny, nie stanowi oferty handlowej w rozumieniu Art.66 Kodeksu Cywilnego.
Zdjęcia zamieszczone na naszej stronie internetowej oraz przesłanej ofercie mają charakter poglądowy. Do każdej inwestycji podchodzimy indywidualnie, więc jeżeli w wycenie nie jest wyszczególniony np. taras, garaż, okna połaciowe, witryny, balkon, komin, piwnica, oświetlenie itp. to podana cena ich nie dotyczy – wymagają dodatkowej dopłaty.
Planujesz budowę i potrzebujesz
Więcej informacji?
Napisz do nas jeśli potrzebujesz więcej informacji o tym projekcie, chce dostosować projekt do swoich potrzeb lub masz inne pytania albo wątpliwości.


























