Montana
289 000 zł
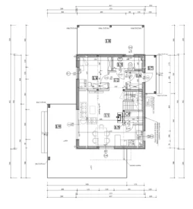
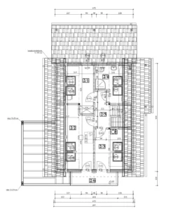
Parametry
| Powierzchnia użytkowa | 87,5 m² |
| Powierzchnia zabudowy | 70,25 m² |
| Powierzchnia podłóg | 103 m² |
| Wymiary domu | 6,97 x 9,52 m |
| Liczba pięter | 1 |
Opis projektu Montana:
Dom drewniany Montana jest przestronnym budynkiem z dużą liczbą witryn (okien), co daje nam bardzo dużo doświetlenia wewnątrz.
Na parterze mamy przestronny salon z aneksem kuchennym o powierzchni 28,30 m².
Dom o łącznej powierzchni użytkowej 87,50 m² da nam sporą przestrzeń do życia.
Wszelkie zmiany układu pomieszczeń są możliwe, jak i dołożenie garażu, tarasu.
Ważne informacje:
Cena dotyczy budynku w stanie surowym zamkniętym. Do kwoty netto należy doliczyć 8% podatku VAT.
Przedstawiona oferta ma charakter informacyjny, nie stanowi oferty handlowej w rozumieniu Art.66 Kodeksu Cywilnego.
Zdjęcia zamieszczone na naszej stronie internetowej oraz przesłanej ofercie mają charakter poglądowy. Do każdej inwestycji podchodzimy indywidualnie, więc jeżeli w wycenie nie jest wyszczególniony np. taras, garaż, okna połaciowe, witryny, balkon, komin, piwnica, oświetlenie itp. to podana cena ich nie dotyczy – wymagają dodatkowej dopłaty.
Planujesz budowę i potrzebujesz
Więcej informacji?
Napisz do nas jeśli potrzebujesz więcej informacji o tym projekcie, chce dostosować projekt do swoich potrzeb lub masz inne pytania albo wątpliwości.















