Karolina II

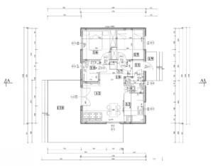
dom o powierzchni 56,4 m²

Parametry

Powierzchnia użytkowa56,4 m²
Powierzchnia zabudowy69,35 m²
Powierzchnia podłóg56,4 m²
Wymiary domu6,88 x 10,08 m
Karolina II projekt domu drewnianego szkieletowego Mildo

Opis projektu Karolina II:

Dom składa się z dwóch sypialni o powierzchni ponad 10 m², salonu z aneksem kuchennym, łazienki oraz pomieszczenia gospodarczego.
Idealne rozwiązanie dla kogoś, kto szuka domu dla siebie. Możliwy w budowie na zgłoszenie do 70 m². Można dodatkowo wykonać również taras.

Ważne informacje:

Cena dotyczy budynku w stanie surowym zamkniętym. Do kwoty netto należy doliczyć 8% podatku VAT.

Przedstawiona oferta ma charakter informacyjny, nie stanowi oferty handlowej w rozumieniu Art.66 Kodeksu Cywilnego.
Zdjęcia zamieszczone na naszej stronie internetowej oraz przesłanej ofercie mają charakter poglądowy. Do każdej inwestycji podchodzimy indywidualnie, więc jeżeli w wycenie nie jest wyszczególniony np. taras, garaż, okna połaciowe, witryny, balkon, komin, piwnica, oświetlenie itp. to podana cena ich nie dotyczy – wymagają dodatkowej dopłaty.

Rzuty:

Galeria:

Planujesz budowę i potrzebujesz

Więcej informacji?

Napisz do nas jeśli potrzebujesz więcej informacji o tym projekcie, chce dostosować projekt do swoich potrzeb lub masz inne pytania albo wątpliwości.

Contact Form Demo