Kansas II

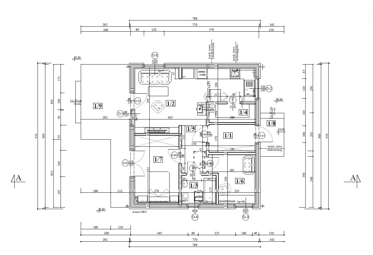
dom o powierzchni 54,04 m²

Parametry

Powierzchnia użytkowa54,04 m²
Powierzchnia zabudowy68,85 m²
Powierzchnia podłóg94,04 m²
Wymiary domu7,86 x 8,76 m
Kansas II projekt domu drewnianego

Ważne informacje:

Cena dotyczy budynku w stanie surowym zamkniętym. Do kwoty netto należy doliczyć 8% podatku VAT.

Przedstawiona oferta ma charakter informacyjny, nie stanowi oferty handlowej w rozumieniu Art.66 Kodeksu Cywilnego.
Zdjęcia zamieszczone na naszej stronie internetowej oraz przesłanej ofercie mają charakter poglądowy. Do każdej inwestycji podchodzimy indywidualnie, więc jeżeli w wycenie nie jest wyszczególniony np. taras, garaż, okna połaciowe, witryny, balkon, komin, piwnica, oświetlenie itp. to podana cena ich nie dotyczy – wymagają dodatkowej dopłaty.

Rzuty:

Galeria:

Planujesz budowę i potrzebujesz

Więcej informacji?

Napisz do nas jeśli potrzebujesz więcej informacji o tym projekcie, chce dostosować projekt do swoich potrzeb lub masz inne pytania albo wątpliwości.

Contact Form Demo