Dakota
278 300 zł
Parametry
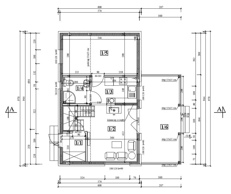
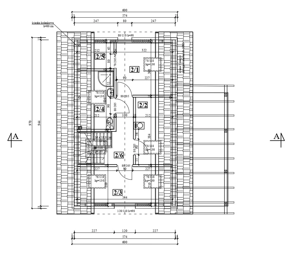
| Powierzchnia użytkowa | 70 m² |
| Powierzchnia zabudowy | 58,2 m² |
| Powierzchnia podłóg | 88 m² |
| Wymiary domu | 6 x 9,7 m |
| Liczba pięter | 1 |
| Garaż | Brak |
Opis projektu Dakota:
W projekcie Dakota zestawiono ze sobą drewno oraz biały tynk, co zaowocowało charakterystycznym urokiem tego domu.
Drewniana konstrukcja wraz z wykończeniem zapewnia wyjątkowy klimat wewnątrz, a także zapewnia pełen komfort dzięki przemyślanemu rozplanowaniu pomieszczeń.
Przewidujemy możliwość zastosowania zmian w stosunku do wielkości domu, bądź zastosowaniu innych jego elementów według Państwa uznania.
Ten budynek może zostać wybudowany zarówno na pozwolenie na budowę, ale również na zgłoszenie w ramach domu do 70 m2.
Możliwość zmiany rozkładu pomieszczeń.
Przybliżony czas realizacji to ok. 3-4 miesiące.
Ważne informacje:
Cena dotyczy budynku w stanie surowym zamkniętym. Do kwoty netto należy doliczyć 8% podatku VAT.
Przedstawiona oferta ma charakter informacyjny, nie stanowi oferty handlowej w rozumieniu Art.66 Kodeksu Cywilnego.
Zdjęcia zamieszczone na naszej stronie internetowej oraz przesłanej ofercie mają charakter poglądowy. Do każdej inwestycji podchodzimy indywidualnie, więc jeżeli w wycenie nie jest wyszczególniony np. taras, garaż, okna połaciowe, witryny, balkon, komin, piwnica, oświetlenie itp. to podana cena ich nie dotyczy – wymagają dodatkowej dopłaty.
Planujesz budowę i potrzebujesz
Więcej informacji?
Napisz do nas jeśli potrzebujesz więcej informacji o tym projekcie, chce dostosować projekt do swoich potrzeb lub masz inne pytania albo wątpliwości.



























































