Alabama III
178 000 zł
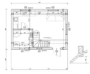
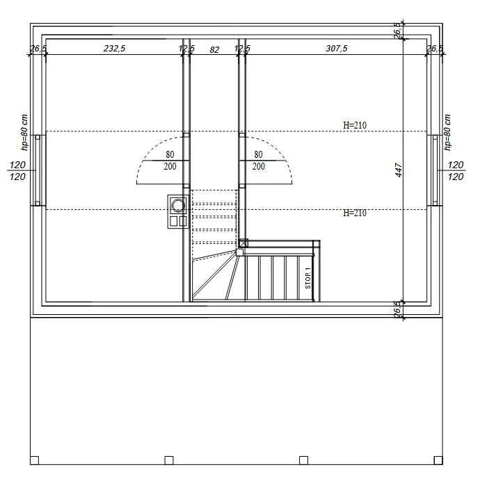
Parametry
| Powierzchnia użytkowa | ok. 43 m² |
| Powierzchnia zabudowy | 35 m² |
| Powierzchnia podłóg | 55 m² |
| Wymiary domu | 7 x 5 m |
Opis projektu Alabama III:
Domek o powierzchni do 35 m² budowany na zgłoszenie. Drewniany domek w stylu kaszubskim, idealny na cele rekreacyjne dla siebie oraz na cele wynajmu.
W cenie piękne ozdoby drewniane, lukarna, przestronny taras idealny na wieczorny relaks i odpoczynek na łonie natury.
Na dole znajdują się aneks kuchenny oraz łazienka, zaś na piętrze dwa pokoje lub antresola.
Możliwość budowy na słupach betonowych lub płycie fundamentowej.
W tym wypadku dach został pokryty gontem bitumicznym, oraz cały dach jest deskowany.
Ważne informacje:
Cena dotyczy budynku w stanie surowym zamkniętym. Do kwoty netto należy doliczyć 8% podatku VAT.
Przedstawiona oferta ma charakter informacyjny, nie stanowi oferty handlowej w rozumieniu Art.66 Kodeksu Cywilnego.
Zdjęcia zamieszczone na naszej stronie internetowej oraz przesłanej ofercie mają charakter poglądowy. Do każdej inwestycji podchodzimy indywidualnie, więc jeżeli w wycenie nie jest wyszczególniony np. taras, garaż, okna połaciowe, witryny, balkon, komin, piwnica, oświetlenie itp. to podana cena ich nie dotyczy – wymagają dodatkowej dopłaty.
Planujesz budowę i potrzebujesz
Więcej informacji?
Napisz do nas jeśli potrzebujesz więcej informacji o tym projekcie, chce dostosować projekt do swoich potrzeb lub masz inne pytania albo wątpliwości.












